“FORTELION”を搭載し、鉛電池仕様に比べて小型軽量を実現。
建築構造負担もコストも軽減。
ゲリラ豪雨対策として上層階設置にお勧めです。
| ラインアップ | 機器構成 | 用途 |
|---|---|---|
| DC100V 直流電源装置 (消防認定品) |
(株)富士電工製 整流器 ・電源出力:4kVA,8kVA ・入力:単相2線 / 三相3線 200V ・出力:直流(DC)100V (株)村田製作所製 リチウムイオン蓄電池 ・電池容量: 4kWh(40Ah),8kWh(80Ah),16kWh(160Ah) ・オプション:AC100V交流出力インバータ 電源容量 / 電池容量など 更に大きなものは設計要求にあわせて お見積り製造致します。 |
消防設備用非常用電源 15年間電池交換不要:維持費低減 鉛電池に比較して、体積2分の1、重量3分の1 ビル上層階にも設置できる軽量コンパクト設計 ゲリラ豪雨対策⇒上層階への設置にお勧めです。 (水害から非常電源消失を防ぐ) その他 受電盤等の制御電源 中央監視計装用電源 |
鉛電池仕様に比べてサイズと質量が半分以下。
ビル上層階にも設置ができる軽量コンパクト設計。ゲリラ豪雨対策をして上層階設置にお勧めです。
軽量低重心だから耐震クラスS設計が楽にできます。地下排水設備や建物構造対策コストも低減できます。
完成品を台車で搬入可能。重機などの搬入施工コストを低減します。既築更新なら建物負荷軽減で耐震性が向上します。


15年間使用可能な長寿命。
電池交換にかかる保守費用を大幅に削減。安心して長期間の利用が可能です。
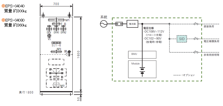
| 型式 | EPS-04040BS EPS-04040BT |
EPS-04080BS EPS-04080BT |
EPS-04160BS EPS-04160BT |
EPS-08160BS EPS-08160BT |
|---|---|---|---|---|
| 消防庁登録機関 一般社団法人 日本電気協会 型式認定番号 19A8005 | ||||
| 直流電源容量 | 4kVA | 8kVA | ||
| 定格蓄電池容量 (1時間率) |
40Ah | 80Ah | 160Ah | |
| 入力電圧 | 単相2線式 / 三相3線式 AC200V 50 / 60Hz | |||
| 定格出力電圧 | DC112.7V±2% (浮動充電) ※電圧調整可能 (±3%) | |||
| 電源定格電流 | 40A | 80A | ||
| 空冷方式 | 自然空冷 | |||
| 効率 | 単相機:88%、三相機:90% | |||
| 蓄電池 | オリビン型リン酸鉄リチウムイオン電池 | |||
| 出力ブレーカー / 数 | 10AT, 15AT, 20AT, 30AT, 50AT / 最大6出力* | 10AT, 15AT, 20AT, 30AT, 50AT / 最大8出力* | ||
| 設置条件 | 屋内 | |||
| 塗装色 | 5Y7 / 1半ツヤ | |||
| 外形寸法 (幅×奥行×高さ) |
700×760×1,650mm | 1,200×760×1,750mm | ||
| 質量 | 約300kg | 約360kg | 約670kg | 約680kg |
| 環境温度 | -5〜40℃ | |||
| オプション | ・SID (15A, 30A, 60A) ・多出力対応盤 ・天笠 ・屋外キュービクル | |||

